Boek je 100% gratis analyse

PVC en aluminium ramen

Uw maatwerkramen met STM Construct

Modern huis met een wit gepleisterde gevel en drie zwarte aluminium kozijnen

Chassis

Pvc of aluminium ramen plaatsen

STM Construct  biedt u een complete raamverkoop en installatieservice PVC of aluminiumafgestemd op jouw specifieke behoeften. Wij maken snel uw offertes op en zorgen voor zorgvuldige installatie in Wallonië. 

Met een ruime keuze aan profielen op maat gemaaktvind je de ideale oplossing voor het verbeteren van thermische prestatie, de comfort en deesthetiek . Vertrouw op onze expertise om de kwaliteit en duurzaamheid van uw ramen te garanderen

Online, snel en gratis.

Onze soorten PVC-ramen

Ontdek onze PVC-raamkozijnen van professionele kwaliteit,met zorg geïnstalleerd door onze ervaren teams.

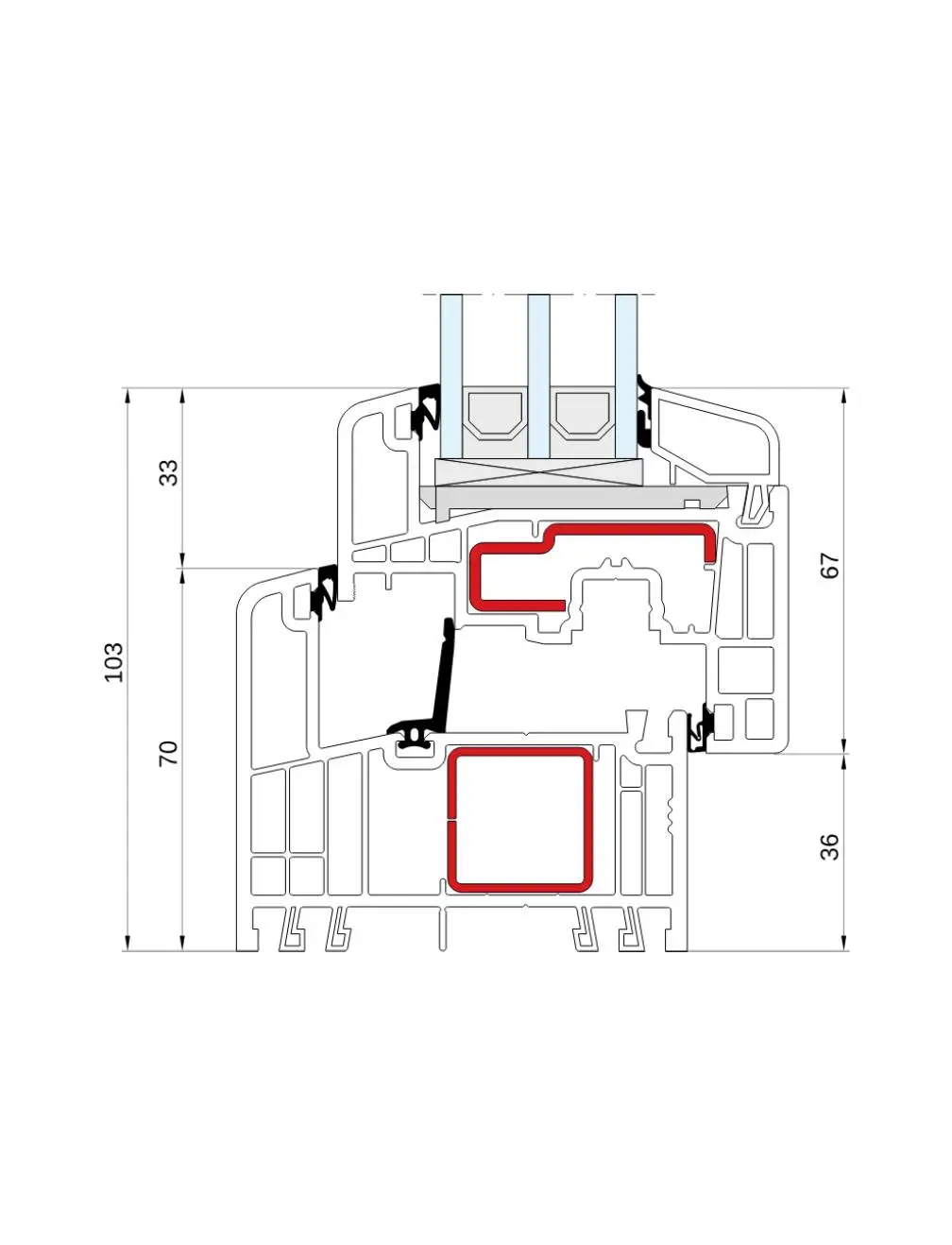
Aluplast Ideal 4000 chassis

De slimme keuze voor je renovatieprojecten

Het chassis Aluplast Ideaal 4000 is perfect voor wie op zoek is naar een goed compromis tussen prestaties, design en kwaliteit. budget. 

Voordelen :

  • Diepte van 70 mm
  • Zeer goede thermische coëfficiënt
  • Goed isolatie geluidsisolatie (tot 45 db) 
  • Eenvoudig, elegant ontwerp
  • Verkrijgbaar in een groot aantal kleuren en afwerkingen
  • Uitstekende prijs-kwaliteitverhouding

Dit chassis is een uitstekend begin om het comfort te verbeteren van je huis zonder je budget op te blazen.

Aluplast Ideal 8000 chassis

Uitmuntendheid in energiebesparing

De Aluplast Ideaal 8000 is een hoogwaardig raam dat is ontworpen voor optimale thermische en akoestische isolatie. Het is perfect voor hoogwaardige nieuwe woningen of ambitieuze renovaties.

Voordelen :

  • Diepte van 85 mm
  • Uitzonderlijke thermische coëfficiënt
  • Hoge geluidsisolatie (tot 48 db)
  • Compatibel met driedubbele beglazing
  • Modern, aanpasbaar ontwerp
  • Geschikt voor passiefhuizen en lage-energiehuizen

 

Kies voor het Ideal 8000-model als u echte energiebesparingen wilt realiseren en tegelijkertijd wilt genieten van optimaal wooncomfort..

Gealan S9000 chassis

Technologie in dienst van prestaties en design

De Gealan S9000 combineert robuustheid, moderne esthetiek en innovatieve technologie. Het is geschikt voor zowel nieuwbouw als veeleisende renovaties.

Voordelen :

  • Hybride meerkamersysteem met profiel van 82,5 mm
  • STV-technologie (statische beglazing) voor meer stabiliteit
  • Uitstekende thermische prestaties)
  • Zeer goed akoestisch comfort
  • Compatibel met driedubbele beglazing
  • Eigentijds ontwerp met de optie van twee kleuren
  • Duurzaamheid en weerbestendigheid

 

De Gealan S9000 is perfect als je op zoek bent naar een hoogwaardig kozijndat zowel efficiënt, stevig als esthetisch is."

Moderne gevel met een band van ramen en op maat gemaakte donkere aluminium kozijnen

Waarom

PVC-ramen installeren?

Uitstekende prijs-kwaliteitverhouding

PVC-kozijnen bieden een uitstekende prijs-kwaliteitverhouding. Hun aantrekkelijke prijs wordt verklaard door de lagere kosten van grondstoffen en geautomatiseerde productie processen. Dit betekent dat je een product krijgt met hoge prestaties, zonder in te leveren op kwaliteit, tegen een zeer concurrerende prijs.

Krachtige thermische en akoestische isolatie

PVC biedt zeer goede thermische isolatie die vaak de prestaties van hout overtreft. Het zorgt ook voor uitstekende akoestische isolatiecompatibel met dubbele of driedubbele beglazingvoor een optimaal comfort in alle seizoenen.

Eenvoudig, zorgeloos onderhoud

PVC frames zijn uiterst gemakkelijk te onderhouden. Een beetje zeepwater en een zachte doek, en klaar is kees! In tegenstelling tot hout, rot PVC niet, vervormt niet en is er geen verf of speciale behandeling nodig. Een echte tijdsbesparing op dagelijkse basis.

Gratis, in slechts een paar minuten.

Onze soorten aluminium frames

Ontdek onze aluminium kozijnen van professionele kwaliteitmet zorg geïnstalleerd door onze ervaren teams.

Genesis 75 frame

De elegante, hoogwaardige keuze voor duurzaam comfort

Het chassis Genesis 75 onderscheidt zich door zijn slanke, moderne ontwerp in combinatie met uitstekende thermische prestaties. Hij biedt een uitstekende stabiliteit en is bijzonder geschikt voor grote openingen.

Voordelen :

  • Diepte van 75 mm voor meer stevigheid en duurzaamheid
  • Zeer goed thermische coëfficiëntaangepast aan de huidige isolatienormen
  • Goede akoestische isolatie
  • Slank, eigentijds ontwerp, ideaal voor moderne huizen
  • Ruime keuze aan kleuren en afwerkingen

 

Het is het perfecte chassis als je op zoek bent naar een mengsel van energieprestatie en moderne esthetiek.

Eco Futural frame

De veelzijdige, kosteneffectieve oplossing

De Eco Futural is een aluminium frame dat ontworpen is om zich aan te passen aan verschillende soorten projecten, met een goede prijs-kwaliteitverhouding en een strak, doeltreffend design.

Voordelen :

  • Zeer goede prijs-kwaliteitverhouding
  • Goede thermische en akoestische isolatie
  • Verkrijgbaar in zichtbare of verborgen opening
  • Geschikt voor ramen, terrasdeuren en schuifdeuren
  • Eenvoudig ontwerp, aanpasbaar in verschillende kleuren

 

Dit is het chassis dat wordt aanbevolen voor degenen die een betrouwbare en veelzijdige oplossingzonder concessies te doen aan de kwaliteit.

MB-86N aluprof chassis

Maximale prestaties voor veeleisende huizen

Het chassis Aluprof MB-86N is een hoogwaardige oplossing, speciaal ontworpen voor lage-energie- of passiefhuizen. Het combineert uitzonderlijke thermische prestaties met een hoge mechanische weerstand.

Voordelen :

  • Uitzonderlijke thermische isolatie (versterkte versies beschikbaar)
  • Compatibel met dikke beglazing voor optimale geluidsisolatie
  • Hoge mechanische sterkte, ideaal voor grote openingen
  • Topdesign, verkrijgbaar in een groot aantal kleuren en afwerkingen
  • Geschikt voor lage-energie- en passiefhuizen

 

Het is het ideale chassis voor wie op zoek is naar de hoogste niveaus van comfort en energie-efficiëntie.

Waarom

Aluminium kozijnen installeren?

Ongeëvenaarde stevigheid en duurzaamheid

Aluminium is een robuust materiaal dat na verloop van tijd niet krom trekt en perfect weerbestendig is. Het roest niet, zwelt niet op en blijft tientallen jaren presteren. Een veilige, duurzame investering voor je huis.

Modern, helder ontwerp

Dankzij de slanke profielen kan aluminium worden gebruikt om grote glasoppervlakken te integreren en zoveel mogelijk natuurlijk licht binnen te laten. De elegante, eigentijdse look is perfect voor zowel moderne projecten als karaktervolle renovaties.

Versterkte isolatie

Uitgerust met thermische onderbrekingsprofielen bieden aluminium kozijnen een uitstekende isolatie tegen kou, warmte en geluid. In combinatie met dubbele of driedubbele beglazing garanderen ze het hele jaar door comfort en energiebesparing.

Gratis, in slechts een paar minuten.

Donker bakstenen huis met grote op maat gemaakte zwarte PVC ramen
Close-up van een zwart aluminium chassis, met een modern ontwerp en versterkte isolatie

Waarom

STM Construct kiezen voor uw chassis?

Snelle, nauwkeurige offertes

Dankzij onze intern ontwerpbureaukunnen we uw offertes en tekeningen voor kozijnen op maat snel leveren. Je ontvangt een duidelijke, gedetailleerde offerte die perfect is afgestemd op jouw project.

Ruime keuze aan profielen

We bieden verschillende series frames voor alle budgetten en vereisten: thermische prestatie, geluidsisolatie, esthetiekof eenvoudig onderhoud.

Eén aanspreekpunt voor alles

Van inmeten tot installatie, inclusief technisch advies, STM Construct zorgt voor alles. Geen uitbesteding, geen tussenpersonen. Je bent in goede handen.

Professionele installatie

Onze ervaren teams zorgen voor een nette, snelle en conforme installatie,om de optimale prestaties van uw kozijnen te garanderen

Online, snel en gratis.

Ontdek

Onze voordeuren op maat

Je voordeur is veel meer dan alleen een ingang tot je huis: hij weerspiegelt je stijl, zorgt voor veiligheid en helpt je huis te isoleren. Bij STM Construct kunnen we je voordeuren aanbieden in PVC of van aluminiumop maat gemaakt en met zorg geïnstalleerd door onze ervaren teams.

We werken met erkende paneelleveranciers voor de kwaliteit van hun afwerking en de diversiteit van hun modellen. Zo kun je een deur creëren die veiligheid, comfort en esthetiek combineert, helemaal aangepast aan jouw huis.

Gratis, in slechts een paar minuten.

blauwe pvc deur met houteffect en thermische isolatie
modern huis met grote veiligheidsdeur en erker op twee verdiepingen

Fase 1

Aluminium of PVC?

De voordelen van aluminium voordeuren

  • Elegant ontwerp dankzij vlakke oppervlakken en verborgen scharnieren
  • Onbeperkte keuze aan kleuren
  • Kan worden geïntegreerd met moderne toegangscontrolesystemen (vingerafdruk, toetsenbord, elektrisch slot)
  • Grote afmetingen mogelijk zonder afbreuk te doen aan stabiliteit
  • Duurzaamheid en weerstand na verloop van tijd
  • Uitstekende inbraakbeveiliging

De voordelen van PVC voordeuren

  • Een breed scala aan kleuren en afwerkingen (imitatiehout, effen of metallic tinten)
  • Verschillende oppervlakken: houtgeribbeld, mat gegranuleerd of glad
  • Hoge duurzaamheid en stabiliteit dankzij speciale stalen versterkingen
  • Versterkte thermische isolatie voor meer energiebesparing
  • Originele ontwerpen zoals betonlook voor een moderne, unieke look
  • Uitstekende prijs-kwaliteitverhouding
 

Online, snel en gratis.

Fase 2

Het deurpaneel kiezen

Zodra de technische elementen zijn gekozen, is het tijd om je te richten op de esthetiek. Het deurpaneel is het element dat karakter geeft aan je ingang. Je kunt kiezen voor :

  • Eenvoudige of decoratieve beglazing met zandstralen
  • Een massief of design deurpaneel
  • Moderne of meer klassieke modellen die bij je stijl passen

Online, snel en gratis.

Op maat gemaakte deur met een origineel ontwerp, afgerond en beglaasd

Een bouw- of renovatieproject?

Neem contact met ons op om een offerte op maat aan te vragen.

dakraam voordelen

Jouw project

Analyseer je project

Ons team van experts staat klaar om je project te analyseren en je oplossingen op maat aan te bieden. Wacht niet langer om je ideeën werkelijkheid te laten worden!